APARTAMENTO ALCÂNTARA

Projeto de Arquitetura de Interiores

Ano de Conclusão : 2019

Área Construída : 43 m2

Localização : Alcântara, Lisboa

Equipa: Filipa Menino, João Pedro Cavaco

Clientes: Mariana Pardal Monteiro e Jorge Galrão

Fotógrafo : Nuno Almendra

Apartamento de Alcântara é um projeto de interiores que propõe a revisão critica das áreas sociais, com cerca de 40 m2, de um apartamento na cidade de Lisboa, que tem como objetivo ser a casa de família de um casal recém-casado.  

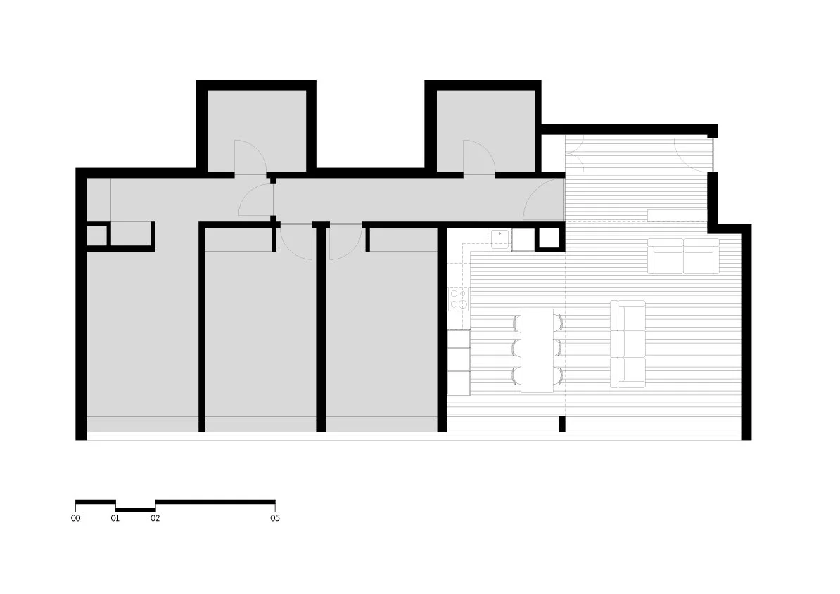
Originalmente acedia-se ao apartamento diretamente para a zona de sala, que devido às suas dimensões reduzidas, não permitia albergar uma zona de estar e uma zona de refeições. Toda a restante casa era isolada deste espaço por uma porta, através da qual se acedia a um corredor. Do corredor era possível alcançar a cozinha, uma instalação sanitária, dois quartos e uma suite.

Após a leitura do existente, o apartamento apresentava alguns problemas na sua proporção e funcionalidade, nomeadamente a área reduzida da sala, a proporção desta em relação à área da cozinha e dos quartos e o facto do acesso à cozinha ser realizado pelo corredor dos quartos. 

A proposta centra-se então na solução dos problemas descritos, caracterizando-se por uma operação de detalhe na área social do apartamento. Esta operação apresenta duas estratégias de intervenção simples e claras: a abertura da cozinha para a área da sala –  fechando o acesso existente pelo corredor dos quartos, de forma a separar nitidamente as duas vertentes funcionais da casa – e a delimitação das diferentes funções da área social com base no desenho e integração dos objetos funcionais que as caracterizam. 

A primeira área, a zona de entrada do apartamento é agora delimitada de forma mais clara a partir da proposta de inserção de uma estante desenhada de forma a ser integrada no espaço. Este objeto, que funciona como separação clara até ao teto com uma cota inferior na zona de entrada, permite ao mesmo tempo manter uma relação visual com o resto do espaço e manter a iluminação natural na zona de entrada. A segunda zona, é a zona de estar que se demarca das restantes devido à estrutura original dos vãos exteriores e ao pé direito mais elevado. A cozinha, agora integrada na sala, é proposta por isso como um objeto de destaque que ao conviver com a restante área social, tem um grande impacto no mesmo. Nesse sentido, ao propor a sua relocalização, o seu desenho foi pensado de forma a ser um objeto que se integrasse na restante área social, não só ao nível da distribuição dos equipamentos, mas principalmente ao nível da cor e materiais escolhidos. A zona de refeições é agora possível de integrar no espaço de uma forma funcional e demarca-se pela iluminação de teto proposta. Foi proposta ainda a alteração do pavimento de toda a zona social, bem como a lacagem de todas as madeiras existentes no espaço, de forma a torna-lo mais amplo. 

O projeto teve então como intuito a união de toda a área social do apartamento, de forma a qualificar a sua habitabilidade e definindo as diferentes zonas a partir do desenho de objetos que lhe confiram harmonia.

Anterior
Anterior

Arruda 105